Quick Search
Type
Category
City
Zone
Search
Code
Price (from - to)
-
Sqm (from - to)
-
Order

vbf ma 465 - Newly built semi-detached house in Marlia

Farmhouse, House of Character

MARLIA – In a green and private location, just steps from all the main amenities, we offer for sale a newly built semi-detached house on two levels, complete with a garden with the possibility of building a swimming pool.

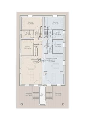
The house, approximately 170 square meters, comprises a bright living room with an open-plan kitchen and direct access to the porch and basement, a hallway, a double bedroom, a twin bedroom, and a bathroom with shower. The first floor features the master bedroom with ensuite bathroom. The basement level features a spacious 32 square meter basement, versatile and easily adaptable to different needs.

The house also features a porch of approximately 18 square meters, a garden on three sides for a total of approximately 370 square meters, and exclusive parking spaces.

The property has an Energy Class A4 rating and is equipped with the most modern energy-saving solutions: a 6 kW photovoltaic system, underfloor heating with a heat pump, air conditioning, home automation, burglar alarm system, video intercom, thermally insulated windows, shutters, and controlled mechanical ventilation in every room.

Each space has been designed with attention to detail, combining modern style, comfort, and functionality to ensure a highly energy-efficient home with minimal energy consumption.

The area is well-connected and well-served: shops, supermarkets, schools, pharmacies, and public transportation are nearby, with the city center easily accessible in just 7 km.

The layout and specifications can be modified, and a swimming pool can be built.

Another villa is available for €415,000.

DUE TO PRIVACY REAONS THE ADDRESS INDICATED IN THE AD DOES NOT CORRESPOND TO THE REAL LOCATION OF THE PROPERTY.
CONTACT US FOR MORE DETAILS.


VISIT OUR WEBSITE: www.deimmobiliare.com TO SEE ALL THE PROPERTIES AVAILABLE FOR SALE AND FOR RENT.
WE CAREFULLY SELECT THE MOST INTERESTING PROPERTIES IN THE PROVINCE OF LUCCA.
DO NOT HESITATE TO CONTACT US FOR INFORMATION AND REQUESTS.
D E I I M M O B I L I A R E - Via Pesciatina 173 Lunata (Lucca) Italy
OFFICE: +390583920498 MOBILE: +393293166782 - EMAIL: studioimdei@gmail.com
FOLLOW US ON OUR FACEBOOK PAGE: Dei Immobiliare
VIDEO
Price
465,000 EUR / trat.
Sqm
170
Energetic Class
A4
Locals
6
Rooms
3
Bathrooms
2
Car places
4
Sqm garden
375
Property Conditions
New
Rank
Medium
Position
Suburb
View
Garden View
Orientation
North West South
Free Sides
3
Garden
Private
Furniture
Not Furnished
Type living
Living room
Kitchen
Eat-In Kitchen
Heating
Independent
Heating Type
Heat Pump
Type of heating system
Floor heating
Energy source
PV
Hot Water
Independent
Cooling
Split
Fixtures
PVC triple glazed
Doors
New
Blind
PVC Blinds
Floors Living Room
Porcelain
Floors Bedrooms
Parquet
Floors Kitchen
Porcelain
Floors Bathroom
Porcelain
Access for disabled
No barrier
Disabled internal access
Full access
Insulation
Present
Thermal insulation
External insulation
Acoustic insulation
Windows/frames
Insulation thickness (cm)
14
Accessories
Air Conditioning, Handicap Bathroom, Fireplace, Electric gate, Double Glazing, Photovoltaic, Laundry, Passing Car, Pedestrian Crossing, Armored door, Closet, Triple glazing, Video Intercom
MAP
Via del Giardinetto , Capannori (LU)
Cookie preference