Ricerca rapida
Tipologia
Categoria
Città
Zona
Cerca
Codice
Prezzo (da - a)
-
Mq (da - a)
-
Ordine

vbf ma 415 - Villetta Bifamiliare di nuova costruzione a Marlia

Villa Bifamiliare, Rustico/Casale

MARLIA – In posizione verde e riservata, a pochi passi da tutti i principali servizi, proponiamo in vendita una villetta bifamiliare di nuova costruzione sviluppata su due livelli e corredata da giardino con possibilità di realizzare la piscina.

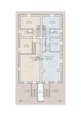
La villetta, di circa 143 mq, si compone al piano terra di luminoso soggiorno con cucina a vista e accesso diretto al porticato, ripostiglio/lavanderia, disimpegno, camera matrimoniale, camera singola e bagno con doccia. Al piano primo si trova la camera padronale con bagno privato.

A corredo un comodo ripostiglio esterno, un porticato di circa 12 mq, giardino su tre lati per un totale di circa 320 mq e posti auto esclusivi.

L’immobile è in Classe Energetica A4 ed è dotato delle più moderne soluzioni per il risparmio energetico: impianto fotovoltaico da 6 kW, riscaldamento a pavimento con pompa di calore, aria condizionata, domotica, predisposizione per antifurto, videocitofono, infissi a taglio termico, persiane e ventilazione meccanica controllata in ogni ambiente.

Ogni spazio è stato progettato con attenzione ai dettagli, unendo stile moderno, comfort e funzionalità, per garantire un’abitazione ad altissima efficienza energetica e con consumi ridotti al minimo.

La zona risulta ben collegata e servita: nelle immediate vicinanze si trovano negozi, supermercati, scuole, farmacie e mezzi pubblici, con il centro città facilmente raggiungibile in soli 7 km.

Possibilità di modificare la disposizione degli spazi e il capitolato e di realizzare la piscina. .
Disponibile altra villetta di maggiori dimensioni al prezzo di 465.000 Euro
POSSIBILITA' DI BENEFICIARE DELLE DETRAZIONI FISCALI.

PER MOTIVI DI PRIVACY L'INDIRIZZO INDICATO NELL'ANNUNCIO NON CORRISPONDE ALLA REALE UBICAZIONE DELL'IMMOBILE.
CONTATTACI PER AVERE PIÙ DETTAGLI.


PUOI TROVARE TUTTE LE OFFERTE AGGIORNATE SUL NOSTRO SITO INTERNET: www.deimmobiliare.com
SEGUICI ANCHE SULLA NOSTRA PAGINA FACEBOOK Dei Immobiliare
D E I I M M O B I L I A R E - Via Pesciatina 173 Lunata (LU) TEL UFFICIO: 0583.920498 CELL. 329.3166782 - EMAIL: studioimdei@gmail.com
SELEZIONIAMO CON CURA GLI IMMOBILI PIU' INTERESSANTI, NELLE VARIE ZONE DELLA PROVINCIA DI LUCCA.
CONTATTACI PER RICHIESTE E INFORMAZIONI AGGIUNTIVE.





VIDEO
Prezzo
415.000 EUR / trat.
Mq
143
Classe
A4
Locali
6
Camere
3
Bagni
2
Posti auto
4
Mq Giardino
320
Stato Immobile
Nuovo
Grado
Medio
Posizione
Periferia
Panorama
Vista Giardino
Orientamento
Nord Ovest Sud
Lati Liberi
3
Giardino
Privato
Arredi
Non Arredato
Tipo Soggiorno
Soggiorno
Tipo Cucina
Abitabile
Riscaldamento
Autonomo
Tipo Riscaldam.
Pompa di Calore
Tipo Impianto
Pavimento
Fonte Energetica
Fotovoltaico
Acqua Calda
Autonoma
Raffrescamento
Split
Infissi
PVC Triplo Vetro
Serramenti
Nuovo
Persiana
Persiana PVC
Pavim. Giorno
Gres Porcellanato
Pavim. Notte
Parquet
Pavim. Cucina
Gres Porcellanato
Pavim. Bagno
Gres Porcellanato
Accesso Disabili
Nessuna Barriera
Accesso interno disabili
Pieno accesso
Isolamento
Presente
Isolamento termico
Cappotto esterno
Isolamento acustico
Serramenti
Spessore cappotto (cm)
14
Destinato a residenti
Si
Accessori
Antifurto, Aria Condizionata, Bagno Handicap, Camino, Cancello Elettrico, Doppi Vetri, Impianto Fotovoltaico, Lavanderia, Passaggio Automobilistico, Passaggio Pedonale, Porta Blindata, Ripostiglio, Tripli Vetri, Video Citofono
MAPPA
Via del Giardinetto , Capannori (LU)
Cookie preference